To Annex a Space: A Library & Pinup Gallery

To Connct A Space: Gallery Annex to an Existing Space

To Divide A Space: A Liminal Gathering Place

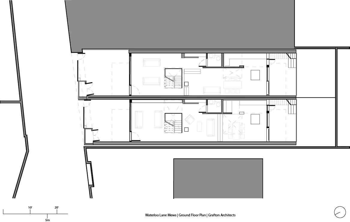
To Understand a Space: Grafton Architects Waterloo Lane Mews

Next
Next

ARC 202